Családi ház (téglaépítés)

Szobaszám:
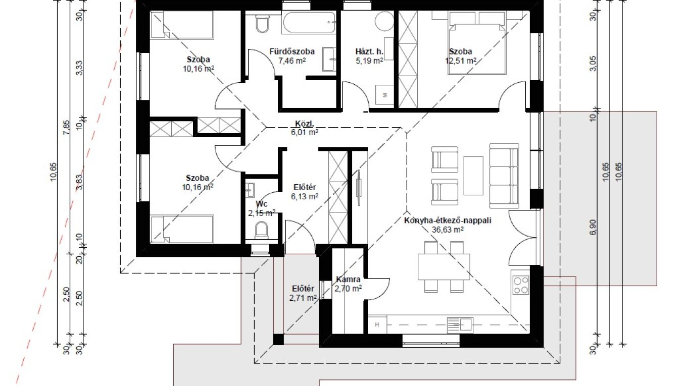
3
Előtér:
6.13 m2
Fürdő:
7.46 m2
Konyha - étkező - nappali:
36.63 m2
Közlekedő:
6.01 m2
kamra:
2.7 m2
Szoba 1:
10.16 m2
Szoba 2:
10.16 m2
Szoba 3:
12.51 m2
Háztartási helyiség:
5.19 m2
Wc:
2.15 m2
Terület összesen:
99.1 m2
64 900 000 Ft-tól
Kapcsolattartó
Kovács Szabolcs

Cégvezető

Telefonszám

+36 (70) 378 08 82

E-mail cím

gardahaz@gmail.com

A 100 m²-es téglaépítésű ház átgondolt kialakítása kényelmes megoldást ad családoknak, akik stabil és modern otthont keresnek.
Az épület hagyományos sávalappal készül, amely biztos alapot ad a teljes szerkezetnek.
A falazat 30-as téglából épül, korszerű hőszigeteléssel kiegészítve, így az épület megfelel a mai energetikai elvárásoknak.

A tégla szerkezet jó hőtároló képességet ad, ami kiegyensúlyozott belső hőmérsékletet biztosít egész évben.
A belső terek jól szervezettek, a nappali és a privát helyiségek funkcionálisan elkülönülnek.
A kialakítás a mindennapi használatra optimalizált, praktikus alaprajzzal és jól kihasználható terekkel.

A ház építése tartós anyagokra és bevált technológiára épül.
Energiahatékony működésre tervezve, kiszámítható fenntartási költségekkel.
Ez az otthon jó választás azoknak, akik klasszikus téglaépítésű házat szeretnének mai műszaki színvonalon.

Széchenyi
Hívjon most! (09:00-16:00)